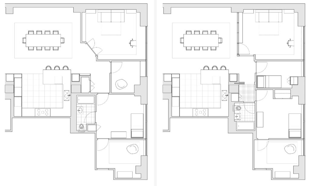
Foto: studioofficina.com Accente colorate pe fundal neutru, în acest apartament luminos 27 aprilie 2026 | Case și amenajări | Petri Radulescu Distribuie articolul pe: Proiectul acestui apartament a pornit de la o nevoie aparent simplă: îmbunătățirea accesului către a doua baie. Proprietarii, un cuplu tânăr în așteptarea celui de-al doilea copil, și-au dorit un spațiu mai funcțional și mai bine organizat pentru viața de zi cu zi. Deși apartamentul este generos și luminos, zona dedicată copiilor avea o compartimentare neeficientă. Baia secundară putea fi accesată doar prin dormitorul copilului mai mare, o soluție care urma să devină impracticabilă. Pornind de la această provocare, întregul spațiu a fost regândit inteligent. Prin ajustări atent gândite ale pereților și repoziționarea accesului în baie, s-au obținut mai multe beneficii: biroul a fost transformat într-un dormitor complet funcțional, camerele au căpătat forme mai echilibrate, iar zona de zi a fost deschisă vizual prin introducerea unor suprafețe vitrate care aduc mai multă lumină naturală, potrivit studioofficina.com. Baia copiilor a fost complet renovată și transformată într-un spațiu luminos, prietenos și modern, cu finisaje jucăușe și soluții eficiente de depozitare. Chiar dacă dimensiunea este compactă, fiecare detaliu a fost optimizat pentru confort și funcționalitate. Întregul proiect a fost realizat într-un timp scurt, cu decizii rapide și o coordonare atentă, rezultatul fiind un apartament mai bine organizat, mai luminos și perfect adaptat nevoilor unei familii în creștere. Foto: studioofficina.com CITEȘTE ȘI: Industrialul întâlnește eleganța, într-un apartament cu fundal alb Baia fără rosturi: idei de amenajare Colțul de recuperare emoțională: locul din casă unde te retragi să faci ce-ți place Distribuie articolul pe: Petri Radulescu